ID CP2321118

Apartament 2 camere | Finisat | Cartier Terra

ID CP2321118

86,000 €

Apartament cu 2 camere de vânzare
Terra, Floresti
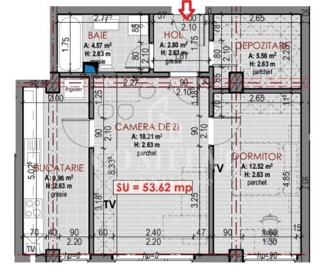
53.62 mp
2024

Vă propunem spre vânzare un apartament cu 2 camere, finisat, la parterul unui imobil situat în cartierul Terra.

Cu o suprafață utilă de 53.62 mp, apartamentul este compartimentat astfel: 1 dormitor, 1 living, 1 bucătărie, 1 hol, 1 baie, 1 dressing.

În cadrul finisajelor regăsim: geamuri cu sticla tripla, gresie și faianta portelanata tip marmura, utilități baie, parchet laminat de 12 cm, vopsea lavabila antimucegai cu silicon, ușă metalica, întrerupătoare, lustre si prize, sanitare, centrala termica si calorifere noi, uși de interior WENGHE, utilitățile trase pe pozitii (gaz, curent).

Locuința deține certificat de performanță energetică. Acesta va fi predat cumpărătorilor la data semnării contractului de vânzare.

Pentru detalii suplimentare și vizionari vă stăm cu drag la dispoziție!

"Informatiile din anunt au fost furnizate in prealabil de catre proprietar. Agentia nu isi asuma responsabilitatea pentru eventualele modificari in ceea ce priveste pretul sau informatiile prezentate.

Citește mai mult

  • Tip apartament
    Apartament
  • Compartimentare
    Semidecomandat
  • Număr camere
    2
  • Dormitoare
    1
  • Număr bucătării
    1
  • Număr băi
    1
  • Etaj
    Parter
  • Suprafață utilă
    53.62 mp
  • Suprafață construită
    64.34 mp
  • Disponibilitate
    Imediat
  • Confort
    1
  • Stare interior
    Finisat modern
  • Anul finisării
    2025
  • Imobil
    Bloc de apart.
  • Stadiu construcție
    Finalizată
  • An construcție
    2024
  • Construcție nouă
    Da
  • Tip construcție
    Cărămidă
  • Reabilitat termic
    Da
  • Număr etaje clădire
    3

Facilități

Apă
Apometre
Bucătărie închisă
Cadă
Calorifere
Canalizare
CATV
Centrală proprie
Contor căldură
Contor electric
Contor gaz
Curent
Dressing
Faianță
Gaz
Geamuri termopan
Gresie
Iluminat stradal
Interfon
Internet
Izolație exterioară
Mijloace de transport în comun
Nemobilat
Parchet
Străzi asfaltate
Telefon
Ușă intrare metal
Uși interior lemn
Vopsea lavabilă
Ana Maria Cioflica - Comitat Imobiliare
Ana Maria Cioflica
Agent Senior

0725308803


Solicită chiar acum o vizionare
Telefon
Sună acum Solicită vizionare
Necesare:

Site-ul nu poate funcționa corect fără aceste cookie-uri. Vezi cookie-urile

Statistică:

Strângem statistici anonime despre voi, vizitatorii unici, pentru a vă îmbunătăți experiența dumneavoastră. Vezi cookie-urile

Marketing:

Pentru a ne promova mai eficient serviciile noastre, folosim cookies pentru a vă identifica și a vă oferi proprietăți și servicii personalizate. Vezi cookie-urile

Acest site folosește cookies, află detalii. Alege ce tipuri de cookies dorești să permitem: