ID CP2128963

Apartament cu 1 cameră | Etaj intermediar | Construcție nouă | Sopor

Această proprietate nu mai este activă,
te invităm să vizualizezi proprietăți similare

ID CP2128963

123,900 € (negociabil)

Apartament cu 1 camere de vânzare
Gheorgheni, Cluj-Napoca
40 mp
2024

Vă propunem spre vânzare un apartament cu 1 cameră în zona Soporului, lânga Baza Sportinvă din Gheorgheni.

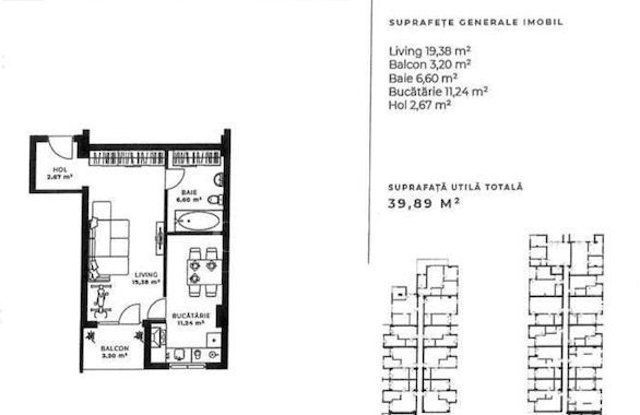
Apartamentul beneficiază de o suprafață utilă de 40 mp.

Compartimentarea este următoarea:

-1 living, 1 bucăatărie, 1 baie, si 1 balcon de 3 mp.

Locuința face parte dintr-o construcție nouă, finalizată în anul 2024, și se poziționează la etajul 2/6 al acestuia.

Apartamentul are certificat de performanță energetică în lucru, acesta va fi predat viitorilor proprietari la contractul de vânzare!

*Informațiile din anunț au fost furnizate în prealabil de către proprietar. Agenția nu își asumă responsabilitatea pentru eventualele modificări în ceea ce privește prețul sau informațiile prezentate. Va așteptăm cu drag la vizionare! Echipa Comitat Imobiliare!

Citește mai mult

  • Tip apartament
    Apartament
  • Compartimentare
    Semidecomandat
  • Număr camere
    1
  • Dormitoare
    1
  • Număr bucătării
    1
  • Număr băi
    1
  • Etaj
    2
  • Suprafață utilă
    40 mp
  • Suprafață construită
    48 mp
  • Disponibilitate
    Imediat
  • Orientare
    Nord-Est
  • Confort
    1
  • Stare interior
    Semifinisat
  • Număr balcoane
    1
  • Imobil
    Bloc de apart.
  • Stadiu construcție
    Finalizată
  • An construcție
    2024
  • Construcție nouă
    Da
  • Tip construcție
    Cărămidă
  • Reabilitat termic
    Da
  • Număr etaje clădire
    6
  • Are demisol
    Da

Facilități

Apă
Apometre
Bucătărie deschisă
Canalizare
CATV
Centrală proprie
Contor căldură
Contor electric
Contor gaz
Curent
Ferestre care se deschid
Gaz
Geamuri tripan
Iluminat stradal
Încălzire prin pardoseală
Izolație exterioară
Lift
Mijloace de transport în comun
Nemobilat
Șapă
Străzi asfaltate
Telefon
Ușă intrare metal
Vedere spre oraș
Necesare:

Site-ul nu poate funcționa corect fără aceste cookie-uri. Vezi cookie-urile

Statistică:

Strângem statistici anonime despre voi, vizitatorii unici, pentru a vă îmbunătăți experiența dumneavoastră. Vezi cookie-urile

Marketing:

Pentru a ne promova mai eficient serviciile noastre, folosim cookies pentru a vă identifica și a vă oferi proprietăți și servicii personalizate. Vezi cookie-urile

Acest site folosește cookies, află detalii. Alege ce tipuri de cookies dorești să permitem: