ID CP2138782

Apartament 2 camere, semifinisate | zona Eroilor

ID CP2138782

105,000 €

Apartament cu 2 camere de vânzare
Eroilor, Floresti
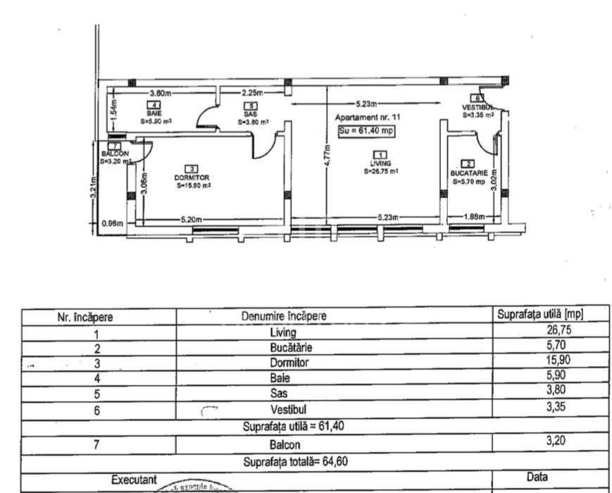
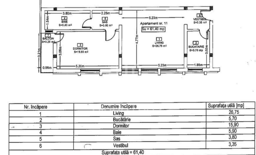
61.4 mp

Va prezentam spre vanzare acest apartament cu 2 camere decomndate, in zona Eroilor asteptand cu nerabdare sa devina noul vostru camin.

Situat la etajul 2 al unui bloc de 3 etaje, acesta beneficiază de o suprafață utilă de 61.4 mp și este compartimentat astfel: 1 dormitor, 1 living cu bucatarie , -1bai ,1 hol.

Acest apartament se bucura de o localizare excelenta, oferind acces usor la toate punctele de interes din zona. Fiind situat in apropiere de centre comerciale, restaurante, parcuri si facilitati publice, veti avea totul la indemana.

Apartamentul se poate finisa la cererea clientului.

Proprietatea are certificat de performanță energetică. Acesta va fi predat de către proprietari cumpărătorilor, la data semnării contractului de vânzare.

Pentru informații suplimentare și vizionări va așteptăm cu drag sa ne contactați!

Informațiile din anunț au fost furnizate în prealabil de către proprietar. Agenția nu își asumă responsabilitatea pentru eventualele modificări în ceea ce privește prețul sau informațiile prezentate.

Citește mai mult

  • Tip apartament
    Apartament
  • Compartimentare
    Semidecomandat
  • Număr camere
    2
  • Dormitoare
    1
  • Număr bucătării
    1
  • Număr băi
    1
  • Etaj
    2
  • Suprafață utilă
    61.4 mp
  • Suprafață construită
    73.68 mp
  • Disponibilitate
    Imediat
  • Confort
    1
  • Stare interior
    Semifinisat
  • Număr terase
    1
  • Număr locuri parcare
    1
  • Imobil
    Bloc de apart.
  • Stadiu construcție
    Finalizată
  • Tip construcție
    Cărămidă
  • Număr etaje clădire
    3

Facilități

Apă
Canalizare
CATV
Curent
Gaz
Iluminat stradal
Internet
Izolație exterioară
Izolație interioară
Mijloace de transport în comun
Străzi asfaltate
Telefon
Ușă intrare metal
Ana Maria Cioflica - Comitat Imobiliare
Ana Maria Cioflica
Agent Senior

0725308803


Solicită chiar acum o vizionare
Telefon
Sună acum Solicită vizionare
Necesare:

Site-ul nu poate funcționa corect fără aceste cookie-uri. Vezi cookie-urile

Statistică:

Strângem statistici anonime despre voi, vizitatorii unici, pentru a vă îmbunătăți experiența dumneavoastră. Vezi cookie-urile

Marketing:

Pentru a ne promova mai eficient serviciile noastre, folosim cookies pentru a vă identifica și a vă oferi proprietăți și servicii personalizate. Vezi cookie-urile

Acest site folosește cookies, află detalii. Alege ce tipuri de cookies dorești să permitem: