ID CP2623863

0% comision la cumpărare | 3 camere | zona Audi Calea Turzii

ID CP2623863

155,000 €

Apartament cu 3 camere de vânzare
Buna Ziua, Cluj-Napoca
53 mp
2008

Vă propunem spre vânzare fără comision la cumpărare, un apartament de 3 camere situat la etajul 3 din 4 al unui imobil rezidențial construit in anul 2008.

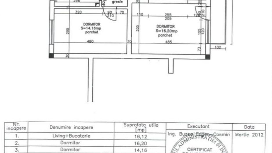
Proprietatea are o suprafață utilă de 53 mp la care se mai adaugă un balcon de 5 mp, cu orientare estică, beneficiind astfel de lumină naturală pe durata primei părți a zilei.

Locuința dispune de 2 dormitoare, o bucătărie cu living, o baie spațioasă cu geam, un balcon și se vinde mobilat și utilat.

Apartamentul este disponibil imediat, fiind o oportunitate atractivă atât pentru investitori chiria lunară fiin intre 500-600€ cât și pentru o familie nou întemeiată care dorește o locuință într-o zonă accesibilă cu toate facilitățile la îndemână.

Vă invităm să ne contactați pentru mai multe informații sau pentru a programa o vizionare.

Citește mai mult

  • Tip apartament
    Apartament
  • Compartimentare
    Semidecomandat
  • Număr camere
    3
  • Dormitoare
    2
  • Număr bucătării
    1
  • Număr băi
    1
  • Geam la baie
    Da
  • Etaj
    3
  • Suprafață utilă
    53 mp
  • Suprafață construită
    57 mp
  • Disponibilitate
    Imediat
  • Orientare
    Est
  • Confort
    1
  • Stare interior
    Finisat modern
  • Număr balcoane
    1
  • Imobil
    Bloc de apart.
  • Stadiu construcție
    Finalizată
  • An construcție
    2008
  • Construcție nouă
    Da
  • Tip construcție
    BCA
  • Reabilitat termic
    Da
  • Număr etaje clădire
    4
  • Are mansardă
    Da
  • Cadastru
    Există
  • Intabulare
    Există
  • Certificat Energetic
    Există
  • Clasă Energetică
    B

Facilități

Acoperiș
Apă
Apometre
Aragaz
Bucătărie deschisă
Bucătărie mobilată
Bucătărie parțial mobilată
Cadă
Calorifere
Canalizare
CATV
Centrală proprie
Contor căldură
Contor electric
Contor gaz
Curent
Ferestre care se deschid
Ferestre PVC
Gaz
Iluminat stradal
Interfon
Internet
Izolație exterioară
Mașină de spălat rufe
Mijloace de transport în comun
Mobilat parțial
Străzi asfaltate
Telefon
Ușă intrare metal
Uși interior lemn
Vedere panoramică
Vedere spre oraș
Vopsea lavabilă
Radu Sucila - Comitat Imobiliare
Radu Sucila
Manager

0725308803


Solicită chiar acum o vizionare
Telefon
Sună acum Solicită vizionare
Necesare:

Site-ul nu poate funcționa corect fără aceste cookie-uri. Vezi cookie-urile

Statistică:

Strângem statistici anonime despre voi, vizitatorii unici, pentru a vă îmbunătăți experiența dumneavoastră. Vezi cookie-urile

Marketing:

Pentru a ne promova mai eficient serviciile noastre, folosim cookies pentru a vă identifica și a vă oferi proprietăți și servicii personalizate. Vezi cookie-urile

Acest site folosește cookies, află detalii. Alege ce tipuri de cookies dorești să permitem: