ID CP2370278

Apartament în imobil nou | Central | zona Bosch Engineering Center

ID CP2370278

256,025 € (negociabil) + 21% TVA

Apartament cu 3 camere de vânzare
Central, Cluj-Napoca
73.15 mp
2025

Vă propunem încântați spre vânzare un apartament într-un imobil nou și modern în centrul orașului în imediata vecinătate a Bosch Engineering Center.

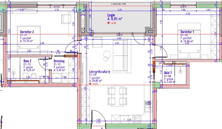
Apartamentul este amplasat la etajul 1 al unui imobil cu lift, nou construit dispus S+P+5E.

Suprafața utilă este de 73.15 mp2 compartimentat astfel:

-living cu bucătărie, 2 dormitoare, 2 bai, 1 dressing și 1 logie de 8,8 mp.

Imobilului beneficiază de centrală termică pe imobil cu încălzire în pardoseală, geamuri tripan rehau, termo-izolație de vată de 15 cm exterior ușa metalică la intrare iar predarea apartamentului se face la stadiul de semi-finisat cu instalații trase pe poziții inclusiv pentru aer condiționat.

Se poate achiziționa parcare subterană la la prețul de 15000Euro+TVA iar parcarea v-a avea lift auto din curtea imobilului.

Proprietatea deține certificatul de performanță energetică. Acesta va fi predat cumpărătorilor la data semnării contractului de vânzare.

Prețul afișat este + TVA.

Predarea se face pe bază de proces verbal iar Cf-urile sunt așteptate să iasă în August-Iunie 2025.

*Informațiile din anunț au fost furnizate în prealabil de către proprietar. Agenția nu își asumă responsabilitatea pentru eventualele modificări în ceea ce privește prețul sau informațiile prezentate.

Citește mai mult

  • Tip apartament
    Apartament
  • Compartimentare
    Semidecomandat
  • Număr camere
    3
  • Dormitoare
    2
  • Număr bucătării
    1
  • Număr băi
    2
  • Etaj
    1
  • Suprafață utilă
    73.15 mp
  • Suprafață construită
    96.58 mp
  • Disponibilitate
    Imediat
  • Orientare
    Est-Vest
  • Confort
    Lux
  • Stare interior
    Semifinisat
  • Număr balcoane
    2
  • Număr garaje
    1
  • Imobil
    Bloc de apart.
  • Stadiu construcție
    Finalizată
  • An construcție
    2025
  • Construcție nouă
    Da
  • Tip construcție
    Cărămidă
  • Reabilitat termic
    Da
  • Număr etaje clădire
    5
  • Are demisol
    Da

Facilități

Apă
Apometre
Bucătărie deschisă
Canalizare
CATV
Centrală imobil
Contor căldură
Contor electric
Contor gaz
Curent
Ferestre PVC
Garaj
Garaj subteran
Gaz
Geamuri tripan
Iluminat stradal
Încălzire prin pardoseală
Interfon
Internet
Izolație exterioară
Lift
Mijloace de transport în comun
Nemobilat
Parcare biciclete
Șapă
Străzi asfaltate
Telecomandă poartă acces auto
Telecomandă poartă garaj
Telefon
Ușă intrare metal
Radu Sucila - Comitat Imobiliare
Radu Sucila
Manager

0725308803


Solicită chiar acum o vizionare
Telefon
Sună acum Solicită vizionare
Necesare:

Site-ul nu poate funcționa corect fără aceste cookie-uri. Vezi cookie-urile

Statistică:

Strângem statistici anonime despre voi, vizitatorii unici, pentru a vă îmbunătăți experiența dumneavoastră. Vezi cookie-urile

Marketing:

Pentru a ne promova mai eficient serviciile noastre, folosim cookies pentru a vă identifica și a vă oferi proprietăți și servicii personalizate. Vezi cookie-urile

Acest site folosește cookies, află detalii. Alege ce tipuri de cookies dorești să permitem: