ID CP2905313

Apartament generos 3 camere | orientare E-S-V | 0% comision | Wings

ID CP2905313

301,350 € (negociabil)

Apartament cu 3 camere de vânzare
Zorilor, Cluj-Napoca
94 mp
2023

Vă propunem spre vânzare un apartament luminos cu orientare Est-Sud-Vest, dispus pe două niveluri, cu spații exterioare generoase și o compartimentare gandită pentru locuință modernă, în ansamblul rezidențial Wings din Cluj-Napoca.

Achiziția se realizează cu 0% comision pentru cumpărător.

Date tehnice ale proprietății:

Suprafață utilă: 94,02 mp

Suprafață totală terase / balcoane: 74 mp

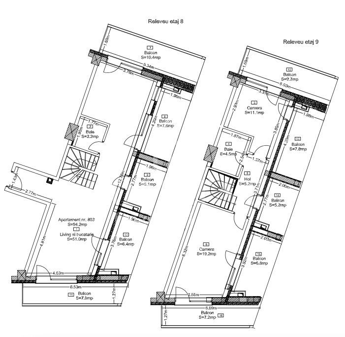
Regim de înălțime: Etajele 8 și 9

Orientare: Est – Sud – Vest

Stadiu predare: semifinisat

Confort termic asigurat prin centrală termică proprie pe gaz și încălzire în pardoseală

Compartimentare:

Etaj 8 – Zona de zi:

Living, Bucătărie, Hol, Baie, 5 terase

Etaj 9 – Zona de noapte:

-2 dormitoare, 1 baie ,Hol, 5 terase

Proprietatea se evidențiază prin numărul rar întâlnit de spații exterioare, oferind posibilitatea amenajării mai multor zone de relaxare, grădină urbană sau dining exterior. Orientarea triplă Est–Sud–Vest asigură lumină naturală pe tot parcursul zilei și o atmosferă aerisită în fiecare încăpere. Delimitarea clară între zona de zi și zona de noapte oferă confort și intimitate, fiind o alegere potrivită atât pentru familii, cât și pentru cei care își doresc un stil de viață urban premium.

Ansamblul Wings este apreciat pentru arhitectura modernă, calitatea construcției și poziționarea excelentă în oraș, oferind acces rapid către facilități urbane și un standard ridicat de locuire.

Aspecte financiare și logistice:

Apartamentul beneficiază de Extras CF

0% comision pentru cumpărător

Prețul afișat include TVA

Parcare subterană inclusă in preț.

Pentru informații suplimentare și programarea unei vizionări, vă stăm la dispoziție.

Citește mai mult

  • Tip apartament
    Apartament
  • Compartimentare
    Semidecomandat
  • Număr camere
    3
  • Dormitoare
    2
  • Număr bucătării
    1
  • Număr băi
    2
  • Etaj
    8
  • Suprafață utilă
    94 mp
  • Suprafață construită
    168 mp
  • Suprafață terasă
    74 mp
  • Disponibilitate
    Imediat
  • Orientare
    Nord-Est
  • Confort
    1
  • Stare interior
    Semifinisat
  • Număr balcoane
    10
  • Număr garaje
    1
  • Imobil
    Bloc de apart.
  • Stadiu construcție
    Finalizată
  • An construcție
    2023
  • Construcție nouă
    Da
  • Tip construcție
    Cărămidă
  • Reabilitat termic
    Da
  • Număr etaje clădire
    14
  • Are demisol
    Da

Facilități

Apă
Apometre
Canalizare
CATV
Centrală proprie
Contor căldură
Contor electric
Contor gaz
Curent
Ferestre aluminiu
Gaz
Geamuri tripan
Iluminat stradal
Încălzire prin pardoseală
Interfon
Internet
Izolație exterioară
Lift
Mijloace de transport în comun
Nemobilat
Străzi asfaltate
Telefon
Ușă intrare metal
Radu Sucila - Comitat Imobiliare
Radu Sucila
Manager

0725308803


Solicită chiar acum o vizionare
Telefon
Sună acum Solicită vizionare
Necesare:

Site-ul nu poate funcționa corect fără aceste cookie-uri. Vezi cookie-urile

Statistică:

Strângem statistici anonime despre voi, vizitatorii unici, pentru a vă îmbunătăți experiența dumneavoastră. Vezi cookie-urile

Marketing:

Pentru a ne promova mai eficient serviciile noastre, folosim cookies pentru a vă identifica și a vă oferi proprietăți și servicii personalizate. Vezi cookie-urile

Acest site folosește cookies, află detalii. Alege ce tipuri de cookies dorești să permitem: