ID CP2905358

Penthouse 3 camere | Orientare Sud-Est | 0% comision | Seasons

ID CP2905358

357,537 € (negociabil)

Apartament cu 3 camere de vânzare
Zorilor, Cluj-Napoca
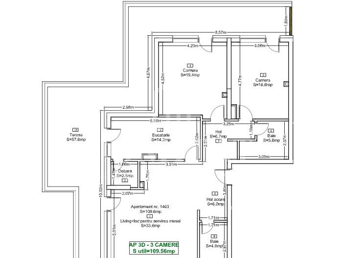
113.92 mp
2025

Vă propunem spre vânzare un penthouse spațios cu 3 camere, potrivit pentru cei care își doresc suprafețe generoase și o compartimentare practică, situat în ansamblul rezidențial Seasons din Cluj-Napoca.

Achiziția se realizează cu 0% comision pentru cumpărător.

Date tehnice ale proprietății:

Suprafață utilă: 113,92 mp

Suprafață terasă: 57,56 mp

Orientare: Sud-Est

Compartimentare: living, bucătărie închisă, 2 dormitoare, 2 băi, 2 holuri, debara, terasă

Stadiu predare: semifinisat

Confort termic asigurat prin centrală termică proprie pe gaz și încălzire în pardoseală

Apartamentul se evidențiază prin suprafața utilă generoasă și terasa amplă, ideală pentru amenajarea unei zone private de relaxare sau dining exterior. Bucătăria închisă oferă un plus de funcționalitate și delimitare a spațiilor, iar orientarea Sud-Est asigură lumină naturală pe parcursul primei părți a zilei și o atmosferă luminoasă în zona de zi. Debara și cele două holuri contribuie la o organizare eficientă a spațiului și la un confort sporit în utilizare.

Ansamblul Seasons este apreciat pentru arhitectura modernă, calitatea construcției și accesul facil către facilități urbane, oferind un standard ridicat de locuire atât pentru familii, cât și pentru investiție.

Aspecte financiare și logistice:

0% comision pentru cumpărător

Prețul afișat include TVA

Parcare inclusă.

Pentru detalii suplimentare și programarea unei vizionări, vă stăm la dispoziție.

Citește mai mult

  • Tip apartament
    Apartament
  • Compartimentare
    Semidecomandat
  • Număr camere
    3
  • Dormitoare
    2
  • Număr bucătării
    1
  • Număr băi
    2
  • Etaj
    14
  • Suprafață utilă
    113.92 mp
  • Suprafață construită
    170.98 mp
  • Suprafață terasă
    57 mp
  • Disponibilitate
    Imediat
  • Orientare
    Sud-Est
  • Confort
    Lux
  • Stare interior
    Semifinisat
  • Număr terase
    1
  • Număr garaje
    1
  • Imobil
    Bloc de apart.
  • Stadiu construcție
    Finalizată
  • An construcție
    2025
  • Construcție nouă
    Da
  • Tip construcție
    Cărămidă
  • Reabilitat termic
    Da
  • Număr etaje clădire
    14
  • Are demisol
    Da

Facilități

Apă
Apometre
Bucătărie închisă
Canalizare
CATV
Contor căldură
Contor electric
Contor gaz
Curent
Ferestre aluminiu
Garaj
Garaj subteran
Gaz
Geamuri tripan
Iluminat stradal
Încălzire prin pardoseală
Interfon
Internet
Izolație exterioară
Lift
Mijloace de transport în comun
Nemobilat
Străzi asfaltate
Telefon
Ușă intrare metal
Vedere panoramică
Vedere spre oraș
Radu Sucila - Comitat Imobiliare
Radu Sucila
Manager

0725308803


Solicită chiar acum o vizionare
Telefon
Sună acum Solicită vizionare
Necesare:

Site-ul nu poate funcționa corect fără aceste cookie-uri. Vezi cookie-urile

Statistică:

Strângem statistici anonime despre voi, vizitatorii unici, pentru a vă îmbunătăți experiența dumneavoastră. Vezi cookie-urile

Marketing:

Pentru a ne promova mai eficient serviciile noastre, folosim cookies pentru a vă identifica și a vă oferi proprietăți și servicii personalizate. Vezi cookie-urile

Acest site folosește cookies, află detalii. Alege ce tipuri de cookies dorești să permitem: