ID CP2961209

Apartament 4 camere | Etaj intermediar | Chinteni

ID CP2961209

175,000 € TVA inclus

Apartament cu 4 camere de vânzare
Chinteni
90.6 mp
2021

Va propunem spre vânzare un apartament spațios cu 4 camere, situat la etajul 1 al unui bloc cu lift construit în 2021 din Chinteni, în zona Beta Residence.

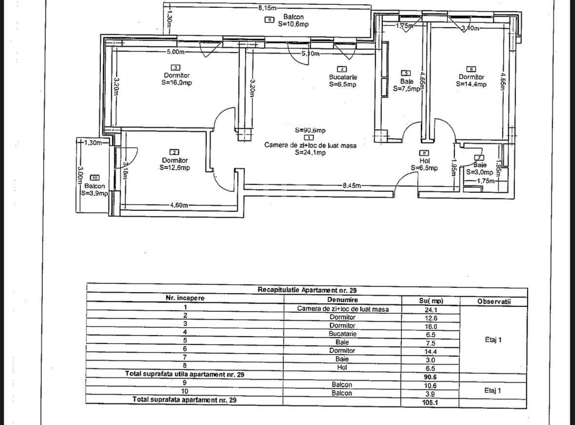
Cu o suprafață utilă de 90.6 mp, la care se adaugă și 2 balcoane de 10.6 și 3.9 mp, apartamentul este compartimentat astfel: 3 dormitoare, 1 living spațios cu bucătărie, 2 băi (baia principală cu geam), 1 hol.

Deține și un loc de parcare în garajul subteran la prețul de 10.000€.

Zona este aerisită și liniștită, dar accesibilă în același timp.

Deține certificat de performanță energetică și va fi predat cumpărătorilor la data semnării contractului de vânzare.

Pentru informații suplimentare și vizionari vă stăm la dispoziție!

Citește mai mult

  • Tip apartament
    Apartament
  • Compartimentare
    Semidecomandat
  • Număr camere
    4
  • Dormitoare
    3
  • Număr bucătării
    1
  • Număr băi
    2
  • Geam la baie
    Da
  • Etaj
    1
  • Suprafață utilă
    90.6 mp
  • Suprafață construită
    108.72 mp
  • Disponibilitate
    Imediat
  • Confort
    1
  • Stare interior
    Semifinisat
  • Număr balcoane
    2
  • Număr locuri parcare
    1
  • Imobil
    Bloc de apart.
  • Stadiu construcție
    Finalizată
  • An construcție
    2021
  • Construcție nouă
    Da
  • Tip construcție
    BCA
  • Reabilitat termic
    Da
  • Număr etaje clădire
    4
  • Număr etaje retrase
    1

Facilități

Apă
Apometre
Bucătărie deschisă
Calorifere
Canalizare
CATV
Centrală proprie
Contor căldură
Contor electric
Contor gaz
Curent
Garaj subteran
Gaz
Geamuri tripan
Iluminat stradal
Internet
Izolație exterioară
Lift
Mijloace de transport în comun
Șapă
Străzi asfaltate
Telefon
Ușă intrare metal
Videointerfon
Ana Maria Cioflica - Comitat Imobiliare
Ana Maria Cioflica
Agent Senior

0725308803


Solicită chiar acum o vizionare
Telefon
Sună acum Solicită vizionare
Necesare:

Site-ul nu poate funcționa corect fără aceste cookie-uri. Vezi cookie-urile

Statistică:

Strângem statistici anonime despre voi, vizitatorii unici, pentru a vă îmbunătăți experiența dumneavoastră. Vezi cookie-urile

Marketing:

Pentru a ne promova mai eficient serviciile noastre, folosim cookies pentru a vă identifica și a vă oferi proprietăți și servicii personalizate. Vezi cookie-urile

Acest site folosește cookies, află detalii. Alege ce tipuri de cookies dorești să permitem: