ID CP2130945

Apartament cu 4 camere 125 mp | cartierul Grigorescu | Panoramă

ID CP2130945

288,397 € (negociabil) + 21% TVA

Apartament cu 4 camere de vânzare
Grigorescu, Cluj-Napoca
125.39 mp
2020

Vă propunem spre vânzare un apartament cu 4 camere în cartierul Grigorescu, într-o zonă accesibilă.

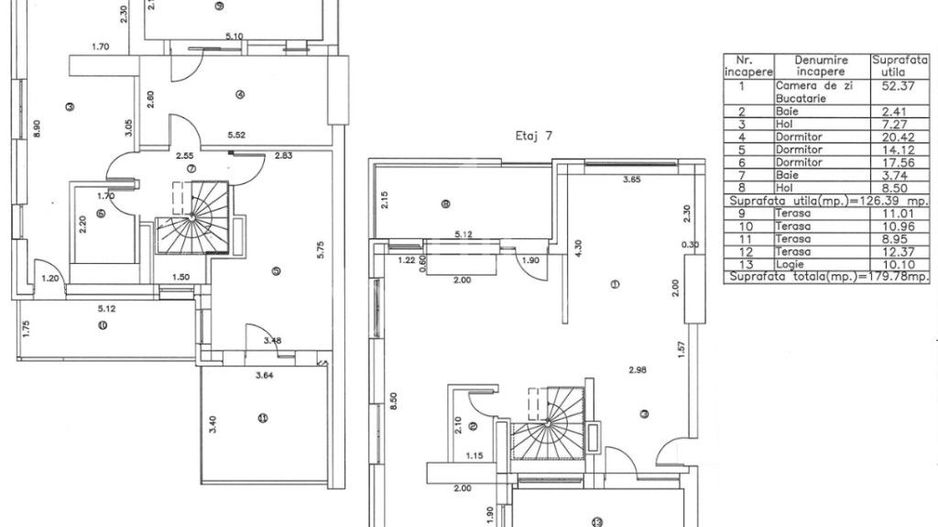
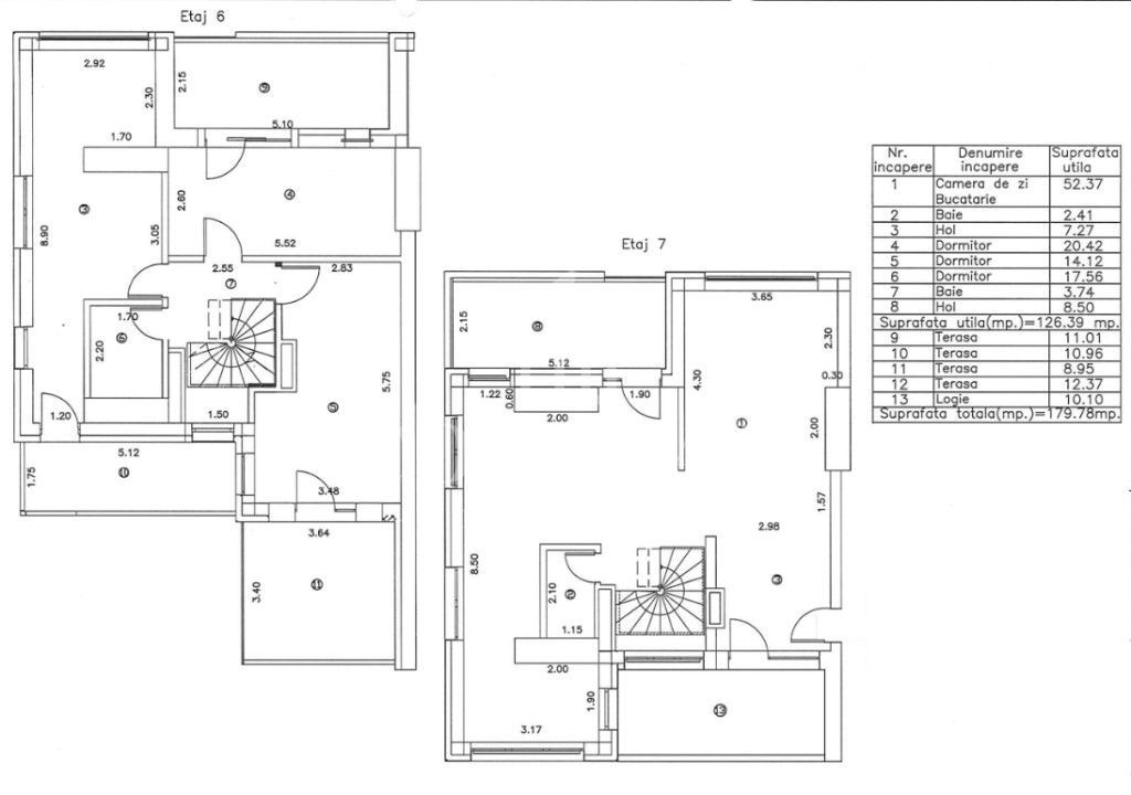
Apartamentul are o suprafață utilă de 126,39 mp+ 4 terase, apartamentul având orientare Sud-Vest-Nord.

Compartimentarea este următoarea:

Nivelul 1: living cu bucătărie și dining, baie, 2 terase generoase cu Sud-Nord și panoramă spre oraș.

Nivelul 2: 3 dormitoare, 1 baie 1 hol și 2 terase.

Predarea se face la stadiul de finisat: parchet pentru pardoseală, geamuri termopan, centrală termică proprie cu încălzire în pardoseală, băi finisate cu gresie și faianță.

La prețul afișat se adaugă TVA (taxare inversă pentru achiziția pe firmă plătitoare de TVA).

Sunt disponibile parcări exterioare contra cost la prețul de 4500Euro+TVA

Apartamentul deține certificat de performanță energetică, acesta va fi predat viitorilor proprietari la contractul de vânzare!

*Informațiile din anunț au fost furnizate în prealabil de către proprietar. Agenția nu își asumă responsabilitatea pentru eventualele modificări în ceea ce privește prețul sau informațiile prezentate. Va așteptăm cu drag la vizionare! Echipa Comitat Imobiliare!

Citește mai mult

  • Tip apartament
    Apartament
  • Compartimentare
    Semidecomandat
  • Număr camere
    4
  • Număr bucătării
    1
  • Număr băi
    2
  • Etaj
    7
  • Suprafață utilă
    125.39 mp
  • Suprafață construită
    179 mp
  • Disponibilitate
    Imediat
  • Orientare
    Nord
  • Confort
    1
  • Stare interior
    Finisat modern
  • Număr terase
    4
  • Număr locuri parcare
    1
  • Imobil
    Bloc de apart.
  • Stadiu construcție
    Finalizată
  • An construcție
    2020
  • Tip construcție
    Cărămidă
  • Reabilitat termic
    Da
  • Număr etaje clădire
    11
  • Are demisol
    Da

Facilități

Apă
Apometre
Bucătărie deschisă
Canalizare
CATV
Centrală proprie
Contor căldură
Contor electric
Contor gaz
Curent
Ferestre PVC
Gaz
Geamuri termopan
Încălzire prin pardoseală
Interfon
Izolație exterioară
Lift
Nemobilat
Parchet
Uși interior lemn
Vedere panoramică
Vedere spre oraș
Vopsea lavabilă
Radu Sucila - Comitat Imobiliare
Radu Sucila
Manager

0725308803


Solicită chiar acum o vizionare
Telefon
Sună acum Solicită vizionare
Necesare:

Site-ul nu poate funcționa corect fără aceste cookie-uri. Vezi cookie-urile

Statistică:

Strângem statistici anonime despre voi, vizitatorii unici, pentru a vă îmbunătăți experiența dumneavoastră. Vezi cookie-urile

Marketing:

Pentru a ne promova mai eficient serviciile noastre, folosim cookies pentru a vă identifica și a vă oferi proprietăți și servicii personalizate. Vezi cookie-urile

Acest site folosește cookies, află detalii. Alege ce tipuri de cookies dorești să permitem: