ID CP2374706

Apartament 4 camere decomandate la cheie zona Arinilor Mănăștur

ID CP2374706

275,000 € (negociabil)

Apartament cu 4 camere de vânzare
Manastur, Cluj-Napoca
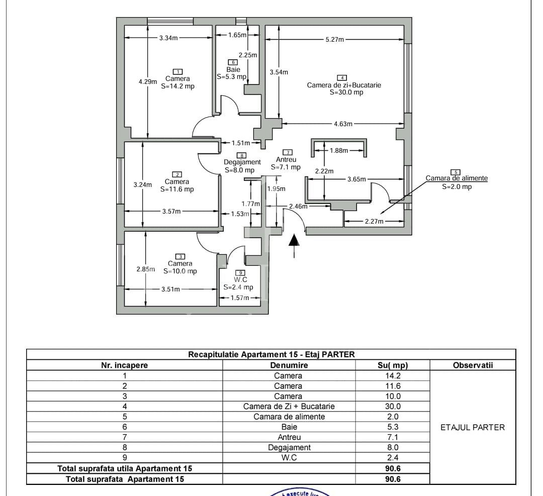
90.6 mp
1992

Avem plăcerea de vă propune spre vânzare un apartament la cheie foarte primitor, cu 4 camere, pentru toată familia ta, în cartierul Mănăștur la limita cu Plopilor.

Apartamentul are o suprafață utilă de 90,6 mp, este amplasat la parterul unui imobil reabilitat termic dispus pe 4 niveluri, cu beci la subsol, construit în anul 1992.

Compartimentarea este eficientă șieste compus din: living spațios, cu bucătărie 3 dormitoare(din care unul transformat în dressing), 2 bai și 2 holuri, unul la intrare și unul din care se face accesul în dormitoare și băi, 1 debara.

Proprietatea se vinde mobilată si utilată complet, cu electrocasnice de calitate, multe spații de depozitare, amenajare practică și de bun gust.

Spațiul deschis, liniștea, și verdeața din jurul imobilului îl fac perfect pentru familii care își doresc liniște și accesibilitate.

Proprietatea deține certificatul de performanță energetică clasa B. Acesta va fi predat de către proprietari cumpărătorilor, la data semnării contractului de vânzare.

Dacă îți dorești o locuință practică, accesibilă și gata de mutat, pentru tine și familia ta, acest apartament este ceea ce cauți.

Vă așteptăm cu drag la vizionare.

"Informatiile din anunt au fost furnizate in prealabil de catre proprietar. Agentia nu isi asuma responsabilitatea pentru eventualele modificari in ceea ce priveste pretul sau informatiile prezentate.

Citește mai mult

  • Tip apartament
    Apartament
  • Compartimentare
    Decomandat
  • Număr camere
    4
  • Dormitoare
    3
  • Număr bucătării
    1
  • Număr băi
    2
  • Etaj
    Parter
  • Suprafață utilă
    90.6 mp
  • Suprafață construită
    110 mp
  • Disponibilitate
    Imediat
  • Orientare
    Est-Vest
  • Confort
    1
  • Stare interior
    Ultrafinisat
  • Imobil
    Bloc de apart.
  • Stadiu construcție
    Finalizată
  • An construcție
    1992
  • Tip construcție
    Beton
  • Reabilitat termic
    Da
  • Număr etaje clădire
    4

Facilități

Apă
Apometre
Aragaz
Bucătărie deschisă
Bucătărie mobilată
Bucătărie utilată
Cabină de duș
Cadă
Calorifere
Canalizare
CATV
Centrală proprie
Contor căldură
Contor electric
Contor gaz
Curent
Dressing
Ferestre care se deschid
Frigider
Garaj
Gaz
Geamuri termopan
Gresie
Hotă
Iluminat stradal
Interfon
Internet
Izolație exterioară
Mașină de spălat rufe
Mașină de spălat vase
Mijloace de transport în comun
Mobilat complet
Parchet
Șemineu
Străzi asfaltate
Telefon
TV
Ușă intrare metal
Uși interior lemn
Vopsea lavabilă
Radu Sucila - Comitat Imobiliare
Radu Sucila
Manager

0725308803


Solicită chiar acum o vizionare
Telefon
Sună acum Solicită vizionare
Necesare:

Site-ul nu poate funcționa corect fără aceste cookie-uri. Vezi cookie-urile

Statistică:

Strângem statistici anonime despre voi, vizitatorii unici, pentru a vă îmbunătăți experiența dumneavoastră. Vezi cookie-urile

Marketing:

Pentru a ne promova mai eficient serviciile noastre, folosim cookies pentru a vă identifica și a vă oferi proprietăți și servicii personalizate. Vezi cookie-urile

Acest site folosește cookies, află detalii. Alege ce tipuri de cookies dorești să permitem: