ID CP2905260

Apartament 4 camere | Terasă panoramică | 0% comision | Wings

ID CP2905260

275,465 € (negociabil)

Apartament cu 4 camere de vânzare
Zorilor, Cluj-Napoca
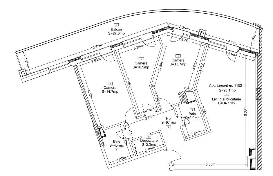
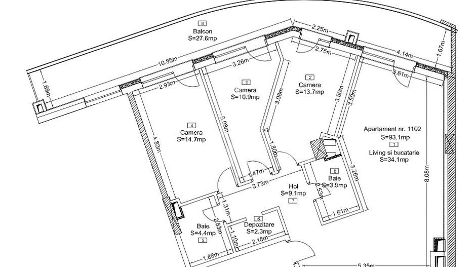
93.1 mp
2023

Vă propunem spre vânzare un apartament spațios cu 4 camere, potrivit pentru o familie sau pentru cei care își doresc un confort ridicat și suprafețe generoase, situat în ansamblul rezidențial Wings din Cluj-Napoca.

Achiziția se realizează cu 0% comision pentru cumpărător.

Date tehnice ale proprietății:

Suprafață utilă: 93,1 mp

Suprafață terasă: 27,6 mp

Etaj: 11 din 14

Orientare Estică.

Compartimentare: living cu bucătărie, 3 dormitoare, 2 băi, spațiu de depozitare

Stadiu predare: semifinisat

Confort termic asigurat prin centrală termică proprie pe gaz și încălzire în pardoseală.

Apartamentul se remarcă prin compartimentarea eficientă și suprafețele vitrate ample, care oferă lumină naturală pe tot parcursul zilei și o perspectivă deschisă asupra orașului. Terasa generoasă completează perfect zona de zi, fiind ideală pentru relaxare sau amenajarea unui spațiu exterior privat cu vedere panoramică.

Ansamblul Wings este recunoscut pentru designul arhitectural modern, calitatea construcției și poziționarea într-o zonă bine conectată la facilitățile urbane, oferind un standard ridicat de locuire și un potențial investițional solid.

Aspecte financiare și logistice:

Apartamentul deține extras cf.

0% comision pentru cumpărător

Prețul afișat include TVA

Parcare subterană inclusă.

Pentru detalii suplimentare și programarea unei vizionări, vă stăm la dispoziție.

Citește mai mult

  • Tip apartament
    Apartament
  • Compartimentare
    Semidecomandat
  • Număr camere
    4
  • Dormitoare
    3
  • Număr bucătării
    1
  • Număr băi
    2
  • Etaj
    11
  • Suprafață utilă
    93.1 mp
  • Suprafață construită
    121 mp
  • Suprafață terasă
    27.6 mp
  • Disponibilitate
    Imediat
  • Orientare
    Est
  • Confort
    Lux
  • Stare interior
    Semifinisat
  • Număr terase
    1
  • Număr garaje
    1
  • Imobil
    Bloc de apart.
  • Stadiu construcție
    Finalizată
  • An construcție
    2023
  • Construcție nouă
    Da
  • Tip construcție
    Cărămidă
  • Reabilitat termic
    Da
  • Număr etaje clădire
    14

Facilități

Apă
Apometre
Canalizare
CATV
Centrală proprie
Contor căldură
Contor electric
Contor gaz
Curent
Ferestre aluminiu
Garaj
Garaj subteran
Gaz
Geamuri tripan
Iluminat stradal
Încălzire prin pardoseală
Interfon
Internet
Izolație exterioară
Lift
Mijloace de transport în comun
Nemobilat
Străzi asfaltate
Telefon
Ușă intrare metal
Radu Sucila - Comitat Imobiliare
Radu Sucila
Manager

0725308803


Solicită chiar acum o vizionare
Telefon
Sună acum Solicită vizionare
Necesare:

Site-ul nu poate funcționa corect fără aceste cookie-uri. Vezi cookie-urile

Statistică:

Strângem statistici anonime despre voi, vizitatorii unici, pentru a vă îmbunătăți experiența dumneavoastră. Vezi cookie-urile

Marketing:

Pentru a ne promova mai eficient serviciile noastre, folosim cookies pentru a vă identifica și a vă oferi proprietăți și servicii personalizate. Vezi cookie-urile

Acest site folosește cookies, află detalii. Alege ce tipuri de cookies dorești să permitem: