ID CP2905271

Penthouse 4 camere | 2 niveluri | 0% comision | Wings

ID CP2905271

448,905 € (negociabil)

Apartament cu 4 camere de vânzare
Zorilor, Cluj-Napoca
129.9 mp
2023

Vă propunem spre vânzare un apartament tip penthouse, dispus pe două niveluri, ideal pentru cei care își doresc spațiu, intimitate și o poziție premium, situat în ansamblul rezidențial Wings din Cluj-Napoca.

Achiziția se realizează cu 0% comision pentru cumpărător.

Date tehnice ale proprietății:

Suprafață utilă: 129,9 mp

Regim de înălțime: Etaj 14 + etaj retras

Orientare: Nord-Est

Stadiu predare: semifinisat

Confort termic asigurat prin centrală termică proprie pe gaz și încălzire în pardoseală

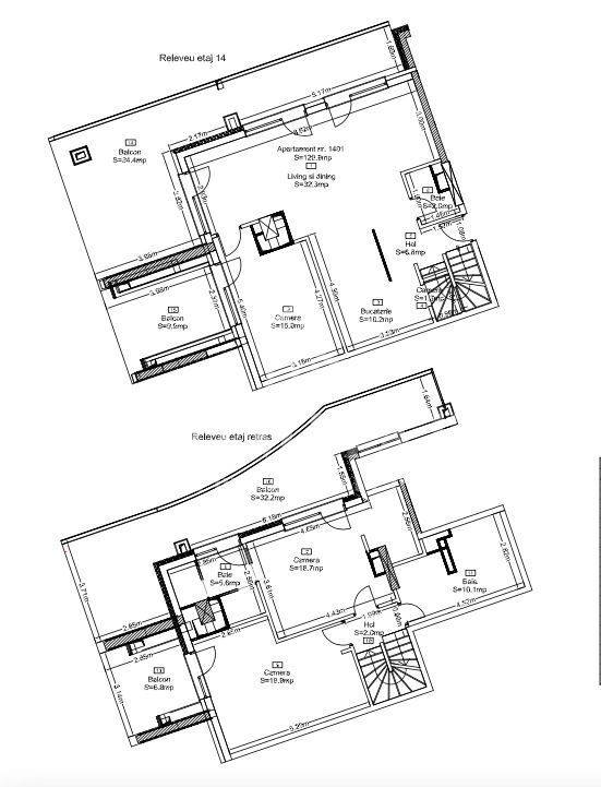
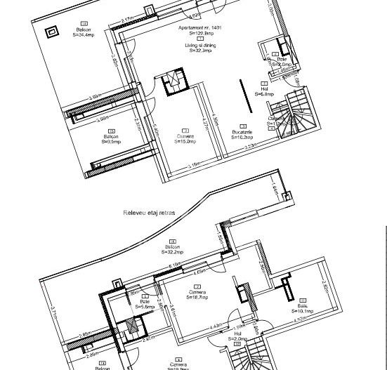
Compartimentare:

Etaj 14:

Living, Bucătărie, Baie, 1 cameră, 1 balcon, 1 terasă

Etaj retras:

2 camere, 2 băi, 1 balcon, 1 terasă

Proprietatea oferă o delimitare clară între zona de zi și zona de noapte, fiind potrivită atât pentru familii, cât și pentru cei care își doresc un spațiu generos de locuire sau work-from-home. Terasele și balcoanele multiple aduc un plus de lumină naturală și permit amenajarea mai multor zone exterioare de relaxare, cu priveliști deschise asupra orașului.

Ansamblul Wings se evidențiază prin arhitectură modernă, calitatea construcției și poziționarea strategică în oraș, oferind acces rapid către principalele puncte de interes și un standard ridicat de confort urban.

Aspecte financiare și logistice:

Apartamentul deține extras cf.

0% comision pentru cumpărător

Prețul afișat include TVA

Parcare subterană inclusă.

Pentru informații suplimentare și programarea unei vizionări, vă stăm la dispoziție.

Citește mai mult

  • Tip apartament
    Apartament
  • Compartimentare
    Semidecomandat
  • Număr camere
    4
  • Dormitoare
    3
  • Număr bucătării
    1
  • Număr băi
    2
  • Etaj
    14
  • Suprafață utilă
    129.9 mp
  • Suprafață construită
    255 mp
  • Suprafață terasă
    124.7 mp
  • Disponibilitate
    Imediat
  • Orientare
    Nord-Est
  • Confort
    Lux
  • Stare interior
    Semifinisat
  • Număr terase
    5
  • Număr garaje
    1
  • Imobil
    Bloc de apart.
  • Stadiu construcție
    Finalizată
  • An construcție
    2023
  • Construcție nouă
    Da
  • Tip construcție
    Cărămidă
  • Reabilitat termic
    Da
  • Număr etaje clădire
    14

Facilități

Apă
Apometre
Canalizare
CATV
Centrală proprie
Contor căldură
Contor electric
Contor gaz
Curent
Ferestre aluminiu
Gaz
Geamuri tripan
Iluminat stradal
Încălzire prin pardoseală
Interfon
Internet
Izolație exterioară
Lift
Mijloace de transport în comun
Nemobilat
Străzi asfaltate
Telefon
Ușă intrare metal
Radu Sucila - Comitat Imobiliare
Radu Sucila
Manager

0725308803


Solicită chiar acum o vizionare
Telefon
Sună acum Solicită vizionare
Necesare:

Site-ul nu poate funcționa corect fără aceste cookie-uri. Vezi cookie-urile

Statistică:

Strângem statistici anonime despre voi, vizitatorii unici, pentru a vă îmbunătăți experiența dumneavoastră. Vezi cookie-urile

Marketing:

Pentru a ne promova mai eficient serviciile noastre, folosim cookies pentru a vă identifica și a vă oferi proprietăți și servicii personalizate. Vezi cookie-urile

Acest site folosește cookies, află detalii. Alege ce tipuri de cookies dorești să permitem: