ID CP2905287

Penthouse 3 niveluri | Terase panoramice | 0% comision | Wings

ID CP2905287

447,139 € (negociabil)

Apartament cu 4 camere de vânzare
Zorilor, Cluj-Napoca
135.8 mp
2023

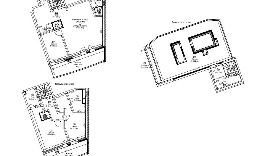
Vă propunem spre vânzare un penthouse spectaculos, dispus pe trei niveluri, destinat celor care își doresc un spațiu de locuire premium, cu suprafețe generoase și terase ample, situat în ansamblul rezidențial Wings din Cluj-Napoca.

Achiziția se realizează cu 0% comision pentru cumpărător, iar proprietatea beneficiază de Extras CF.

Date tehnice ale proprietății:

Suprafață utilă: 135,8 mp

Suprafață terase: 85 mp + terasă panoramică 56 mp

Regim de înălțime: Etaj 14 + etaj retras + nivel superior cu acces pe scară interioară

Orientare: Vest

Stadiu predare: semifinisat

Confort termic asigurat prin centrală termică proprie pe gaz și încălzire în pardoseală

Compartimentare:

Etaj 14:

Living cu bucătărie, Baie, Cămară de alimente, 1 cameră, Hol, 1 terasă

Etaj retras:

2 camere, 2 băi, Hol, 1 terasă

Nivel superior:

Acces pe scară interioară către terasă panoramică de 56 mp, ideală pentru amenajarea unui spațiu de relaxare privat, dining exterior sau zonă lounge.

Proprietatea se remarcă prin compartimentarea inteligentă pe niveluri, delimitând natural zona de zi de zona de noapte și oferind multiple spații exterioare ce permit amenajări diverse. Orientarea vestică asigură lumină naturală în a doua parte a zilei și apusuri spectaculoase, iar terasa superioară oferă un grad ridicat de intimitate și priveliști deschise asupra orașului.

Ansamblul Wings este recunoscut pentru designul arhitectural modern, calitatea construcției și poziționarea excelentă, oferind un standard ridicat de confort urban și un potențial investițional solid.

Aspecte financiare și logistice:

Apartamentul deține extras cf.

0% comision pentru cumpărător

Prețul afișat include TVA

Parcare subterană inclusă.

Pentru detalii suplimentare și programarea unei vizionări, vă stăm la dispoziție.

Citește mai mult

  • Tip apartament
    Apartament
  • Compartimentare
    Semidecomandat
  • Număr camere
    4
  • Dormitoare
    3
  • Număr bucătării
    1
  • Număr băi
    3
  • Etaj
    14
  • Suprafață utilă
    135.8 mp
  • Suprafață construită
    221 mp
  • Suprafață terasă
    85.6 mp
  • Disponibilitate
    Imediat
  • Orientare
    Vest
  • Confort
    Lux
  • Stare interior
    Semifinisat
  • Număr terase
    5
  • Număr garaje
    1
  • Imobil
    Bloc de apart.
  • Stadiu construcție
    Finalizată
  • An construcție
    2023
  • Construcție nouă
    Da
  • Tip construcție
    Cărămidă
  • Reabilitat termic
    Da
  • Număr etaje clădire
    14
  • Are demisol
    Da

Facilități

Apă
Apometre
Canalizare
CATV
Centrală proprie
Contor căldură
Contor electric
Contor gaz
Curent
Ferestre aluminiu
Garaj
Garaj subteran
Gaz
Geamuri tripan
Iluminat stradal
Încălzire prin pardoseală
Interfon
Internet
Izolație exterioară
Lift
Mijloace de transport în comun
Nemobilat
Străzi asfaltate
Telefon
Ușă intrare metal
Radu Sucila - Comitat Imobiliare
Radu Sucila
Manager

0725308803


Solicită chiar acum o vizionare
Telefon
Sună acum Solicită vizionare
Necesare:

Site-ul nu poate funcționa corect fără aceste cookie-uri. Vezi cookie-urile

Statistică:

Strângem statistici anonime despre voi, vizitatorii unici, pentru a vă îmbunătăți experiența dumneavoastră. Vezi cookie-urile

Marketing:

Pentru a ne promova mai eficient serviciile noastre, folosim cookies pentru a vă identifica și a vă oferi proprietăți și servicii personalizate. Vezi cookie-urile

Acest site folosește cookies, află detalii. Alege ce tipuri de cookies dorești să permitem: