ID CP2905330

0% comision | Apartament 4 camere | Terasă generoasă | Wings Cluj

ID CP2905330

275,465 € (negociabil)

Apartament cu 4 camere de vânzare
Zorilor, Cluj-Napoca
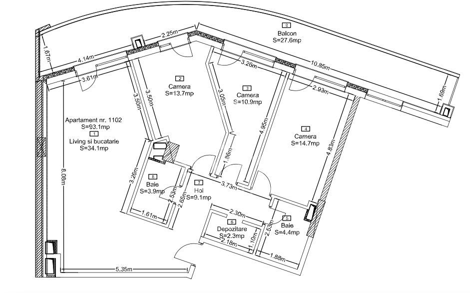
93.1 mp
2023

Vă propunem spre vânzare un apartament spațios cu 4 camere, potrivit pentru o familie sau pentru cei care își doresc suprafețe generoase și o compartimentare eficientă, situat în ansamblul rezidențial Wings din Cluj-Napoca.

Achiziția se realizează cu 0% comision pentru cumpărător.

Date tehnice ale proprietății:

Suprafață utilă: 93,1 mp

Suprafață terasă: 27,6 mp

Etaj: 11 din 14

Orientare: Est

Compartimentare: living cu bucătărie, 3 dormitoare, 2 băi, spațiu de depozitare

Stadiu predare: semifinisat

Confort termic asigurat prin centrală termică proprie pe gaz și încălzire în pardoseală

Apartamentul se remarcă prin dispunerea practică a camerelor și suprafețele vitrate ample care oferă lumină naturală în prima parte a zilei, datorită orientării estice. Terasa generoasă completează zona de zi și permite amenajarea unui spațiu exterior privat pentru relaxare sau dining în aer liber. Spațiul de depozitare aduce un plus de funcționalitate, rar întâlnit în această tipologie.

Ansamblul Wings este apreciat pentru arhitectura modernă, calitatea construcției și poziționarea excelentă, oferind acces rapid către facilități urbane și un standard ridicat de confort pentru locuire sau investiție.

Aspecte financiare și logistice:

Apartamentul beneficiază de extras CF

0% comision pentru cumpărător

Prețul afișat include TVA

Parcare subterană inclusă in preț.

Pentru informații suplimentare și programarea unei vizionări, vă stăm la dispoziție.

Citește mai mult

  • Tip apartament
    Apartament
  • Compartimentare
    Semidecomandat
  • Număr camere
    4
  • Dormitoare
    3
  • Număr bucătării
    1
  • Număr băi
    2
  • Etaj
    11
  • Suprafață utilă
    93.1 mp
  • Suprafață construită
    121 mp
  • Suprafață terasă
    27.6 mp
  • Disponibilitate
    Imediat
  • Orientare
    Est
  • Confort
    1
  • Stare interior
    Semifinisat
  • Număr terase
    1
  • Număr garaje
    1
  • Imobil
    Bloc de apart.
  • Stadiu construcție
    Finalizată
  • An construcție
    2023
  • Construcție nouă
    Da
  • Tip construcție
    Cărămidă
  • Reabilitat termic
    Da
  • Număr etaje clădire
    14
  • Are demisol
    Da

Facilități

Apă
Apometre
Canalizare
CATV
Centrală proprie
Contor căldură
Contor electric
Contor gaz
Curent
Ferestre aluminiu
Garaj
Garaj subteran
Gaz
Geamuri tripan
Iluminat stradal
Încălzire prin pardoseală
Interfon
Internet
Izolație exterioară
Lift
Mijloace de transport în comun
Nemobilat
Străzi asfaltate
Telefon
Ușă intrare metal
Radu Sucila - Comitat Imobiliare
Radu Sucila
Manager

0725308803


Solicită chiar acum o vizionare
Telefon
Sună acum Solicită vizionare
Necesare:

Site-ul nu poate funcționa corect fără aceste cookie-uri. Vezi cookie-urile

Statistică:

Strângem statistici anonime despre voi, vizitatorii unici, pentru a vă îmbunătăți experiența dumneavoastră. Vezi cookie-urile

Marketing:

Pentru a ne promova mai eficient serviciile noastre, folosim cookies pentru a vă identifica și a vă oferi proprietăți și servicii personalizate. Vezi cookie-urile

Acest site folosește cookies, află detalii. Alege ce tipuri de cookies dorești să permitem: