ID CP2133847

Apartament 1 camera | Zona Sesul de sus | 40mp

Această proprietate nu mai este activă,
te invităm să vizualizezi proprietăți similare

ID CP2133847

55,300 €

Apartament cu 1 camere de vânzare
Terra, Floresti
39.67 mp
2024

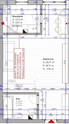
Vă recomandăm spre vânzare un apartament de 1 camera, cu o suprafață utilă de 40 metri pătrați, situat în zona Sesul de sus, Floresti. Apartamentul este situat aproape de statiile de transport in comun si magazine.

Compartimentarea semidecomandata este in felul urmator: - 1 camera- 1 Bucatarie - 1 Baie - 1 Spatiu de depozitare

Oportunitatea de a vă modela propriul cămin, după propriul gust și necesități.

Apartamentul are certificat de perforamanță energetică in lucru. Acesta va fi predat de către proprietari cumpărătorilor, la data semnării contractului de vânzare.

Pentru mai multe informații și vizionări, contactați-ne cu încredere!

Informațiile din anunț au fost furnizate în prealabil de către proprietar. Agenția nu își asumă responsabilitatea pentru eventuale modificări în ceea ce privește prețul sau informațiile prezentate.

Citește mai mult

  • Tip apartament
    Apartament
  • Compartimentare
    Semidecomandat
  • Număr camere
    1
  • Dormitoare
    1
  • Număr bucătării
    1
  • Număr băi
    1
  • Etaj
    Parter
  • Suprafață utilă
    39.67 mp
  • Suprafață construită
    47.6 mp
  • Disponibilitate
    Imediat
  • Orientare
    Vest
  • Confort
    1
  • Imobil
    Bloc de apart.
  • Stadiu construcție
    Finalizată
  • An construcție
    2024
  • Construcție nouă
    Da
  • Tip construcție
    Beton
  • Imobil consolidat
    Da
  • Reabilitat termic
    Da
  • Număr etaje clădire
    2

Facilități

Apă
Apometre
Calorifere
Canalizare
Centrală proprie
Contor căldură
Contor gaz
Curent
Ferestre PVC
Gaz
Iluminat stradal
Izolație exterioară
Mijloace de transport în comun
Nemobilat
Străzi asfaltate
Ușă intrare metal
Necesare:

Site-ul nu poate funcționa corect fără aceste cookie-uri. Vezi cookie-urile

Statistică:

Strângem statistici anonime despre voi, vizitatorii unici, pentru a vă îmbunătăți experiența dumneavoastră. Vezi cookie-urile

Marketing:

Pentru a ne promova mai eficient serviciile noastre, folosim cookies pentru a vă identifica și a vă oferi proprietăți și servicii personalizate. Vezi cookie-urile

Acest site folosește cookies, află detalii. Alege ce tipuri de cookies dorești să permitem: