ID CP2240146

Casă individuală pe un singur nivel | Chinteni

Această proprietate nu mai este activă,
te invităm să vizualizezi proprietăți similare

ID CP2240146

203,000 € (negociabil) + 21% TVA

Casă / Vilă cu 4 camere de vânzare
Chinteni
112.24 mp
2024

Vă propunem spre vânzare o casă individuală pe un singur nivel în zona străzii Ion Creangă.

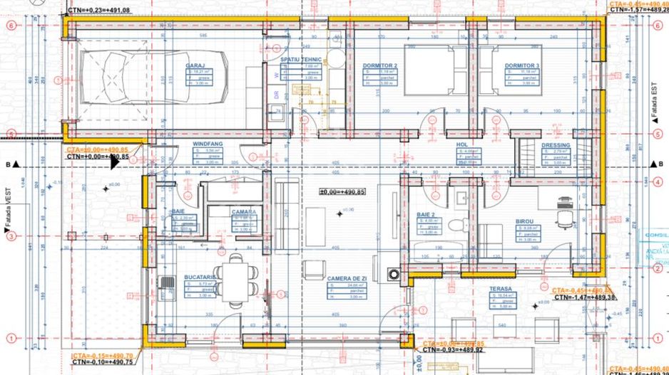
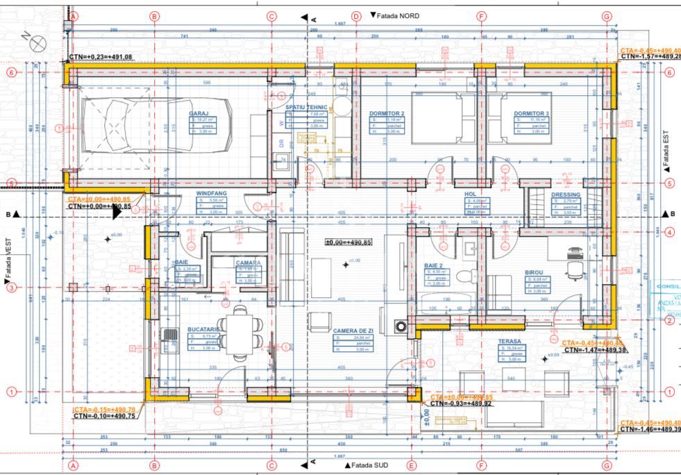
Casa are o suprafață de 112.24 mp utili și cu un teren de 502 mp, curtea fiind amenajată cu gazon și o terasă de 19.54 mp amenajată cu granit.

Compartimentarea este astfel: 3 dormitoare, 1 living cu bucătărie, 2 băi, 2 holuri, 1 cameră tehnică, 1 dressing, 1 cămară.

Casă se predă semifinisată cu șapă, pereții gletuiți și zugrăviți în alb. Construcția are acoperiș de țiglă, planșeul este placa de beton , izolat cu vată bazaltică de 10 cm, încălzirea se face prin pompa de căldură, încălzire în pardoseală și de asemenea regăsim și panouri solare, amplasate pe acoperiș, geamurile sun tripan marca Gealan. Imobilul este construit din cărămidă și este izolat cu vată bazaltică de 15 cm.

Casa deține garaj si 2 locuri de parcare in curte.

Predarea se face in prima parte a anului 2025.

Prețul afișat nu include TVA.

Casa deține certificat de performanță energetică. Acesta va fi predat cumpărătorilor la data semnării constractului de vânzare.

Pentru informații suplimentare și vizionari vă stăm cu drag la dispoziție!

Citește mai mult

  • Număr camere
    4
  • Dormitoare
    3
  • Număr bucătării
    1
  • Număr băi
    2
  • Număr terase
    1
  • Număr locuri parcare
    1
  • Disponibilitate
    Imediat
  • Tip casă
    Individual
  • Stare interior
    Semifinisat
  • Anul finisării
    2024
  • Suprafață utilă
    112.24 mp
  • Suprafață construită
    173.88 mp
  • Suprafață construită la sol (Amprentă)
    193.0 mp
  • Suprafață teren
    502 mp
  • Suprafață terasă
    19.54 mp
  • Acoperiș
    Țiglă
  • Stadiu construcție
    Finalizată
  • An construcție
    2024
  • Construcție nouă
    Da
  • Tip construcție
    Cărămidă
  • Reabilitat termic
    Da

Facilități

Apă
Apometre
Bucătărie deschisă
Canalizare
CATV
Centrală proprie
Contor căldură
Contor electric
Contor gaz
Curent
Debara
Dressing
Garaj
Gaz
Geamuri tripan
Grădină proprie
Iluminat stradal
Încălzire prin pardoseală
Internet
Izolație exterioară
Mijloace de transport în comun
Pompă de căldură
Șapă
Străzi asfaltate
Telefon
Ușă intrare metal
Vopsea lavabilă
WC Serviciu
Zonă pentru barbeque
Necesare:

Site-ul nu poate funcționa corect fără aceste cookie-uri. Vezi cookie-urile

Statistică:

Strângem statistici anonime despre voi, vizitatorii unici, pentru a vă îmbunătăți experiența dumneavoastră. Vezi cookie-urile

Marketing:

Pentru a ne promova mai eficient serviciile noastre, folosim cookies pentru a vă identifica și a vă oferi proprietăți și servicii personalizate. Vezi cookie-urile

Acest site folosește cookies, află detalii. Alege ce tipuri de cookies dorești să permitem: