ID CP2128946

Pentru investitie teren cu PUZ pentru 130 case

Această proprietate nu mai este activă,
te invităm să vizualizezi proprietăți similare

ID CP2128946

3,650,000 € (negociabil)

Teren de 34,100 mp de vânzare
Apahida
34,100 mp

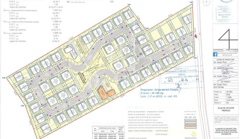
Vă propunem spre vânzare un teren cu potențial imens de investiție în localitatea Apahida Județul Cluj.

Terenul beneficiază de o suprafață totală de 34100 mp cu PUZ aprobat și proiect pentru 130 de locuințe colective și individuale în stil francez, grădiniță și spații comerciale, drumuri și spații verzi.

CUT propus pentru locuințe 1% și POT 40%

CUT propus instituții publice 1.5% și POT 60%

CUT propus activități economice 1.8% și POT 40%

Terenul este o oportunitate de investiție însumând 23944 mp construiți de locuințe, 1547 mp construiți instituții publice și 1528 mp Activități economice.

Pentru detalii suplimentare și vizionări, vă stăm la dispoziție

*Informațiile din anunț au fost furnizate în prealabil de către proprietar. Agenția nu își asumă responsabilitatea pentru eventualele modificări în ceea ce privește prețul sau informațiile prezentate.

Citește mai mult

  • Tip teren
    Construcții
  • Suprafață teren
    34,100 mp
  • Front stradal
    120.0 m
  • Număr fronturi stradale
    1
  • Deschidere la
    Șosea
  • Clasificare
    Intravilan
  • Disponibilitate
    Imediat
  • PUZ Aprobat
    Da

Facilități

Acces auto
Apă
Canalizare
Curent
Gaz
Necesare:

Site-ul nu poate funcționa corect fără aceste cookie-uri. Vezi cookie-urile

Statistică:

Strângem statistici anonime despre voi, vizitatorii unici, pentru a vă îmbunătăți experiența dumneavoastră. Vezi cookie-urile

Marketing:

Pentru a ne promova mai eficient serviciile noastre, folosim cookies pentru a vă identifica și a vă oferi proprietăți și servicii personalizate. Vezi cookie-urile

Acest site folosește cookies, află detalii. Alege ce tipuri de cookies dorești să permitem: