ID CP2313512

Apartament semifinisat | West Peak | Florești

Această proprietate nu mai este activă,
te invităm să vizualizezi proprietăți similare

ID CP2313512

145,000 € (negociabil)

Apartament cu 2 camere de vânzare
Vivo, Floresti
48.9 mp

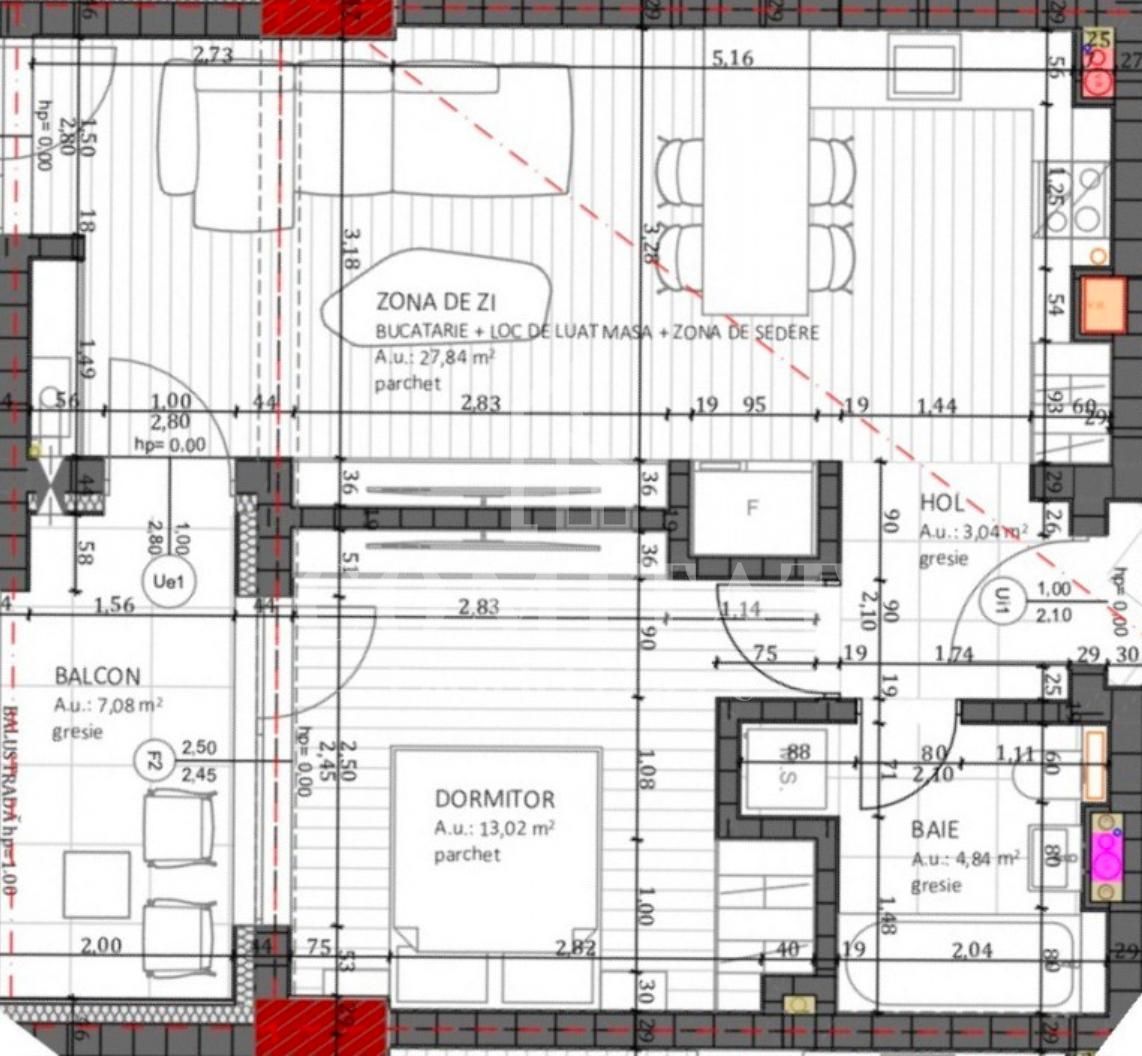
Vă recomandăm spre vânzare un apartament cu 2 camere, cu o suprafață utilă de 48,9, situat in zona Vivo și reprezentanta BMW.

Apartamentul beneficiază de o suprafață utilă de 48,9 mp, și este compartimentat în felul următor: - 1 dormitor, o bucătărie, o baie, 1 balcon de 7 mp. Acesta deține și o parcare (care se vinde separat la pretul de 10.000 euro).

Locuință se preda în stadiu semifinisat.

Apartamentul este situat aproape de stațiile de transport în comun, magazine, farmacii,gradinita,mall-ul VIVO! și multe alte puncte de interes.

Apartamentul are certificat de perforamanță energetică in lucru. Acesta va fi predat de către proprietari cumpărătorilor, la data semnării contractului de vânzare.

Pentru mai multe informații și vizionări, contactați-ne cu încredere!

Informațiile din anunț au fost furnizate în prealabil de către proprietar. Agenția nu își asumă responsabilitatea pentru eventuale modificări în ceea ce privește prețul sau informațiile prezentate.

Citește mai mult

  • Tip apartament
    Apartament
  • Compartimentare
    Decomandat
  • Număr camere
    2
  • Dormitoare
    1
  • Număr bucătării
    1
  • Număr băi
    1
  • Etaj
    2
  • Suprafață utilă
    48.9 mp
  • Suprafață construită
    55 mp
  • Disponibilitate
    Imediat
  • Orientare
    Vest
  • Confort
    2
  • Stare interior
    Semifinisat
  • Anul finisării
    2025
  • Număr balcoane
    1
  • Număr locuri parcare
    1
  • Imobil
    Bloc de apart.
  • Stadiu construcție
    Finalizată
  • Construcție nouă
    Da
  • La revânzare
    Da
  • Reabilitat termic
    Da
  • Număr etaje clădire
    10

Facilități

Acoperiș
Apă
Apometre
Bucătărie deschisă
Canalizare
Centrală proprie
Contor căldură
Contor electric
Contor gaz
Curent
Ferestre care se deschid
Garaj subteran
Gaz
Iluminat stradal
Izolație exterioară
Lift
Loc de joacă copii
Șapă
Străzi asfaltate
Necesare:

Site-ul nu poate funcționa corect fără aceste cookie-uri. Vezi cookie-urile

Statistică:

Strângem statistici anonime despre voi, vizitatorii unici, pentru a vă îmbunătăți experiența dumneavoastră. Vezi cookie-urile

Marketing:

Pentru a ne promova mai eficient serviciile noastre, folosim cookies pentru a vă identifica și a vă oferi proprietăți și servicii personalizate. Vezi cookie-urile

Acest site folosește cookies, află detalii. Alege ce tipuri de cookies dorești să permitem: