ID CP2579288

Oportunitate! Apartament 3 camere | Zona Ultracentrală

ID CP2579288

345,000 €

Apartament cu 3 camere de vânzare
Ultracentral, Cluj-Napoca
97 mp
1910

Știm cat de dificil este să găsiți un imobil în zona cea mai căutată a orașului, în zona ultracentrală. Astfel ca venim spre dumneavoastră cu o propunere a unui apartament cu 3 camere, situat la etajul 1.

Cu o suprafață utilă de 97 mp, apartamentul este compartimentat astfel: 3 camere, 1 bucătărie, 1 baie, 1 hol.

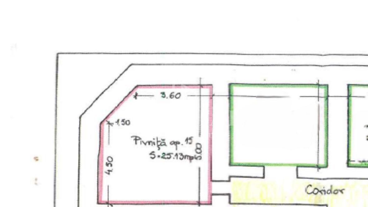
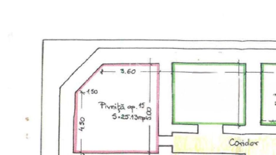
De asemenea deține și o boxă cu suprafața de 25.13 mp.

Un alt beneficiu îl reprezintă posibilitatea parcării în curtea interioară.

Câteva dintre avantajele imobilului:

-Amplasare ultracentrală, apartamentul beneficiază de proximitatea imediată a principalelor puncte de interes: universități, mijloace de transport, școli, cafenele, restaurante, instituții culturale și zone pietonale.

-Compartimentare decomandată – Cele 3 camere sunt bine delimitate, oferind intimitate și posibilitatea amenajării în funcție de necesitatea individuală.

-Finisaje de înaltă calitate care îmbină estetica modernă cu durabilitatea.

-Confort optimizat – Sistem de climatizare performant cu unitate centrală în pod, asigurând un ambient plăcut indiferent de sezon.

-Securitate și siguranță – Dotat cu alarmă și sisteme avansate de securitate pentru un plus de siguranță.

În prezent locuința este închiriată la prețul de 1.150€/luna, astfel ca reprezintă investiția ideală!

Locuința are certificatul de performanță energetică în lucru și va fi predat cumpărătorilor la data semnării contractului de vânzare.

Pentru informații suplimentare și vizionari vă stăm cu drag la dispoziție!

"Informatiile din anunt au fost furnizate in prealabil de catre proprietar. Agentia nu isi asuma responsabilitatea pentru eventualele modificari in ceea ce priveste pretul sau informatiile prezentate.

Citește mai mult

  • Tip apartament
    Apartament
  • Compartimentare
    Semidecomandat
  • Număr camere
    3
  • Dormitoare
    3
  • Număr bucătării
    1
  • Număr băi
    1
  • Etaj
    1
  • Suprafață utilă
    97 mp
  • Suprafață construită
    116.4 mp
  • Disponibilitate
    Imediat
  • Orientare
    Vest
  • Confort
    Lux
  • Stare interior
    Finisat modern
  • Anul finisării
    2010
  • Imobil
    Casă / Vilă
  • Stadiu construcție
    Finalizată
  • An construcție
    1910
  • Tip construcție
    Cărămidă
  • Reabilitat termic
    Da
  • Număr etaje clădire
    1
  • Are pod
    Da

Facilități

Aer condiționat
Apometre
Boxă la subsol
Bucătărie închisă
Bucătărie mobilată
Bucătărie utilată
Calorifere
Centrală proprie
Contor căldură
Contor electric
Contor gaz
Faianță
Geamuri termopan
Gresie
Izolație exterioară
Nemobilat
Parcare deschisă
Parchet
Ușă intrare metal
Uși interior lemn
Vopsea lavabilă
Ana Maria Cioflica - Comitat Imobiliare
Ana Maria Cioflica
Agent Senior

0725308803


Solicită chiar acum o vizionare
Telefon
Sună acum Solicită vizionare
Necesare:

Site-ul nu poate funcționa corect fără aceste cookie-uri. Vezi cookie-urile

Statistică:

Strângem statistici anonime despre voi, vizitatorii unici, pentru a vă îmbunătăți experiența dumneavoastră. Vezi cookie-urile

Marketing:

Pentru a ne promova mai eficient serviciile noastre, folosim cookies pentru a vă identifica și a vă oferi proprietăți și servicii personalizate. Vezi cookie-urile

Acest site folosește cookies, află detalii. Alege ce tipuri de cookies dorești să permitem: