ID CP2187714

Casa finisată modern | 3 camere | Andrei Mureșanu

Această proprietate nu mai este activă,
te invităm să vizualizezi proprietăți similare

ID CP2187714

329,000 € (negociabil)

Casă / Vilă cu 3 camere de vânzare
Andrei Muresanu, Cluj-Napoca
105 mp
1970

Vă propunem spre vânzare o casă cochetă, renovată, cu 3 camere în cartierul Andrei Mureșanu.

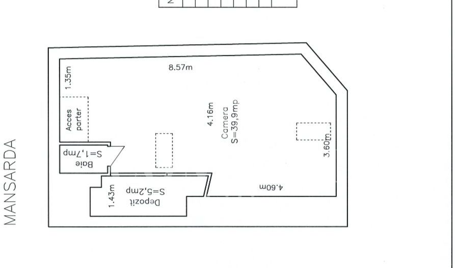
Dispusă pe 2 niveluri P+M și cu o suprafață utilă de 105 mp casa este compartimentată astfel:

-Parter - dormitor, living cu bucătărie, hol, baie cu geam.

-Mansardă - cameră (posibilitate de făcut două camere), baie, spațiu de depozitare.

Acestea beneficiază de o curte de 60 mp ideală care deservește ca loc de parcare pentru 2 mașini.

Locuința deține certificat de performanță energetică. Acesta va fi predat cumpărătorilor la data semnării contractului de vânzare.

Pentru informații suplimentare și vizionari vă stăm cu drag la dispoziție!

"Informatiile din anunt au fost furnizate in prealabil de catre proprietar. Agentia nu isi asuma responsabilitatea pentru eventualele modificari in ceea ce priveste pretul sau informatiile prezentate.

Citește mai mult

  • Număr camere
    3
  • Dormitoare
    2
  • Număr bucătării
    1
  • Număr băi
    2
  • Număr locuri parcare
    2
  • Disponibilitate
    Imediat
  • Tip casă
    Individual
  • Stare interior
    Finisat modern
  • Anul finisării
    2021
  • Suprafață utilă
    105 mp
  • Suprafață construită
    126 mp
  • Suprafață construită la sol (Amprentă)
    76.0 mp
  • Suprafață teren
    133 mp
  • Suprafață curte liberă
    60 mp
  • Acoperiș
    Țiglă
  • Stadiu construcție
    Finalizată
  • An construcție
    1970
  • Tip construcție
    Cărămidă
  • Număr etaje clădire
    1
  • Are mansardă
    Da

Facilități

Apă
Apometre
Bucătărie deschisă
Cadă
Calorifere
Canalizare
CATV
Centrală proprie
Contor căldură
Contor electric
Contor gaz
Curent
Curte
Debara
Dressing
Faianță
Gaz
Geamuri tripan
Gresie
Iluminat stradal
Internet
Izolație exterioară
Mijloace de transport în comun
Mobilat parțial
Parcare deschisă
Parchet
Străzi asfaltate
Telefon
Ușă intrare metal
Uși interior lemn
Vopsea lavabilă
Necesare:

Site-ul nu poate funcționa corect fără aceste cookie-uri. Vezi cookie-urile

Statistică:

Strângem statistici anonime despre voi, vizitatorii unici, pentru a vă îmbunătăți experiența dumneavoastră. Vezi cookie-urile

Marketing:

Pentru a ne promova mai eficient serviciile noastre, folosim cookies pentru a vă identifica și a vă oferi proprietăți și servicii personalizate. Vezi cookie-urile

Acest site folosește cookies, află detalii. Alege ce tipuri de cookies dorești să permitem: