ID CP2135129

Casă individuală Chinteni zona străzii Ana Aslan

ID CP2135129

225,000 € (negociabil) TVA inclus

Casă / Vilă cu 4 camere de vânzare
Chinteni
120 mp
2024

Vă oferim spre vânzare o casă individuală în zona străzii Ana Aslan din localitatea Chinteni.

Casele au o suprafață utilă de 120 mp, sunt dispuse pe un două niveluri și are un teren de 500 în proprietate.

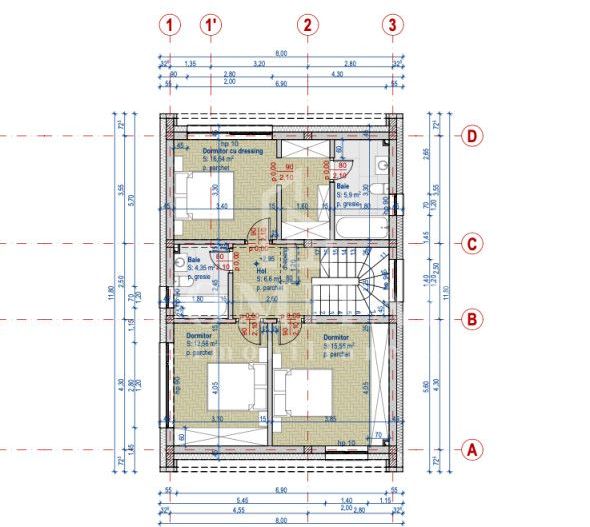
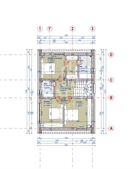
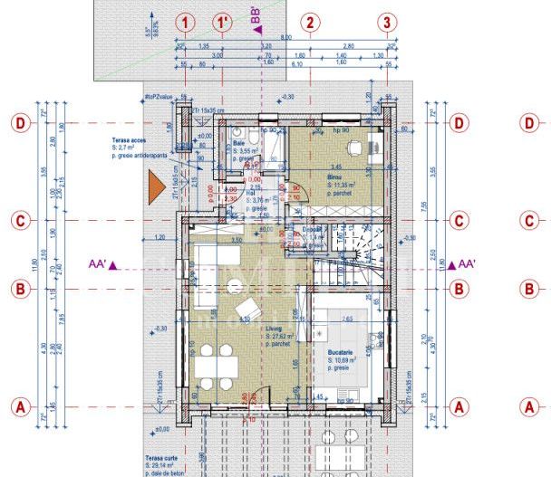
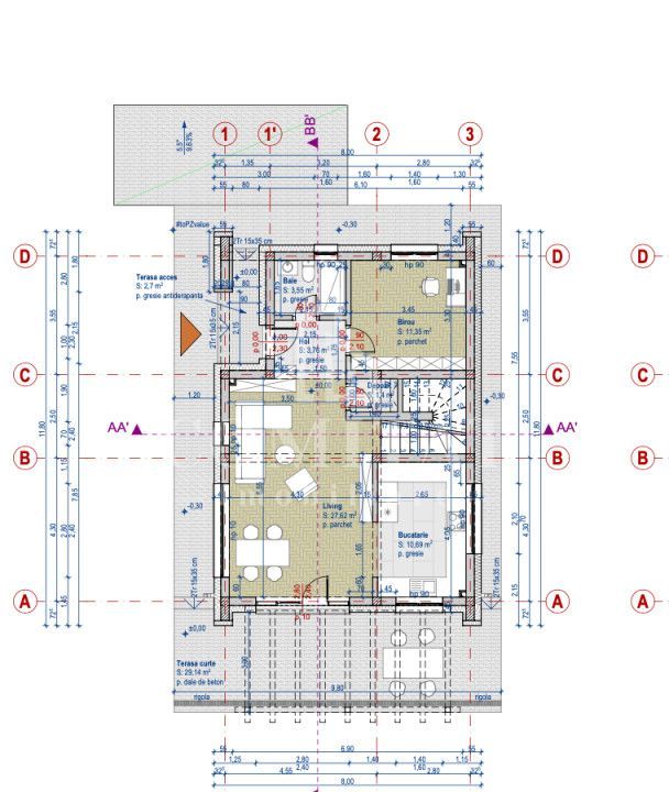
Compartimentarea casei este realizată astfel:

La parter: living cu bucătărie, 1 birou(cameră de oaspeți), antreu, baie, terasă exterioară și garaj pentru o mașină

La etaj: 3 dormitoare din care unul cu baie proprie, baie care deservește celorlalte 2 dormitoare și hol de acces.

Casele vor fi racordate la toate utilitățile și vor fi predate până cel târziu la finalul anului 2024 la stadiul de semifinisat.

Prețul afișat include TVA.

Pentru mai multe detalii și vizionări va așteptăm sa ne contactați!

”Informațiile din anunț au fost furnizate în prealabil de către proprietar. Agenția nu își asumă responsabilitatea pentru eventualele modificări în ceea ce privește prețul sau informațiile prezentate.

Citește mai mult

  • Număr camere
    4
  • Dormitoare
    3
  • Număr bucătării
    1
  • Număr băi
    3
  • Număr terase
    1
  • Număr locuri parcare
    1
  • Disponibilitate
    Imediat
  • Tip casă
    Individual
  • Stare interior
    Semifinisat
  • Suprafață utilă
    120 mp
  • Suprafață construită
    145 mp
  • Suprafață construită la sol (Amprentă)
    80.0 mp
  • Suprafață teren
    500 mp
  • Deschidere
    18 m
  • Acoperiș
    Țiglă
  • Stadiu construcție
    În construcție
  • An construcție
    2024
  • Tip construcție
    Cărămidă
  • Reabilitat termic
    Da
  • Număr etaje clădire
    1

Facilități

Acoperiș
Apă
Apometre
Canalizare
Centrală proprie
Contor căldură
Contor electric
Contor gaz
Curent
Ferestre care se deschid
Ferestre PVC
Geamuri tripan
Grădină proprie
Încălzire prin pardoseală
Izolație exterioară
Nemobilat
Parcare deschisă
Șapă
Străzi pietruite
Ușă intrare PVC
Radu Sucila - Comitat Imobiliare
Radu Sucila
Manager

0725308803


Solicită chiar acum o vizionare
Telefon
Sună acum Solicită vizionare
Necesare:

Site-ul nu poate funcționa corect fără aceste cookie-uri. Vezi cookie-urile

Statistică:

Strângem statistici anonime despre voi, vizitatorii unici, pentru a vă îmbunătăți experiența dumneavoastră. Vezi cookie-urile

Marketing:

Pentru a ne promova mai eficient serviciile noastre, folosim cookies pentru a vă identifica și a vă oferi proprietăți și servicii personalizate. Vezi cookie-urile

Acest site folosește cookies, află detalii. Alege ce tipuri de cookies dorești să permitem: