ID CP2131509

Casă individuală cu panoramă spre oraș zona de case și vile

ID CP2131509

575,000 € (negociabil)

Casă / Vilă cu 5 camere de vânzare
Buna Ziua, Cluj-Napoca
220 mp
2023

Va propunem spre vânzare o casă individuală, zonă de case și duplexuri cu panoramă superbă spre orașul Cluj Napoca.

Casa este poziționată în zonă verde, retrasă de la stradă circulată având o poziție de excepție cu vecinătăți formate exclusiv din case si vile!

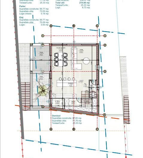
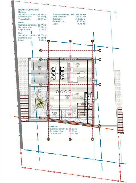
Dispunerea este D+P+E, casa beneficiind de o suprafață utila de 220 mp si teren in proprietate de 410 mp.

Compartimentarea este realizata astfel:

Demisol: living cu bucătărie open space, cămară de alimente, cameră tehnică, ieșire pe terasă și curtea casei.

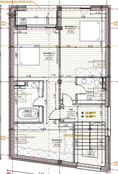
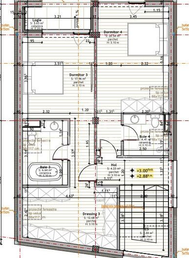
Parterul: 2 dormitoare cu baie fiecare, antreu spațios și 1 dressing.

Etajul: 2 dormitoare cu baie fiecare, dressing și 1 balcon de unde se pot admira luminile orașului seara.

Casa se vinde la stadiul de semifinisat cu încălzire în pardoseală și centrală montată, instalații termice, sanitare și electrice trase pe poziții, pod izolat cu vată bazaltică, geamuri tripan Gealan, izolație exterioară cu polistiren de 15 cm și exterior finalizat complet.

Curte și grădina frumos amenajate cu gazon, alei pavate și garduri de împrejmuire.

Pentru detalii suplimentare si vizionari, ne puteți contacta cu încredere.

*Informațiile din anunț au fost furnizate în prealabil de către proprietar. Agenția nu își asumă responsabilitatea pentru eventualele modificări în ceea ce privește prețul sau informațiile prezentate.

Citește mai mult

  • Număr camere
    5
  • Dormitoare
    4
  • Număr bucătării
    1
  • Număr băi
    4
  • Geam la baie
    Da
  • Număr balcoane
    1
  • Număr terase
    1
  • Număr locuri parcare
    4
  • Disponibilitate
    Imediat
  • Tip casă
    Individual
  • Stare interior
    Semifinisat
  • Suprafață utilă
    220 mp
  • Suprafață construită
    272 mp
  • Suprafață teren
    410 mp
  • Deschidere
    16 m
  • Acoperiș
    Țiglă
  • Stadiu construcție
    Finalizată
  • An construcție
    2023
  • Tip construcție
    Cărămidă
  • Reabilitat termic
    Da
  • Număr etaje clădire
    1
  • Are demisol
    Da

Facilități

Acoperiș
Apă
Apometre
Bucătărie deschisă
Centrală proprie
Contor căldură
Contor gaz
Curent
Ferestre PVC
Gaz
Încălzire prin pardoseală
Izolație exterioară
Nemobilat
Pivniță
Scară interioară
Ușă intrare PVC
Vedere panoramică
Vedere spre oraș
Radu Sucila - Comitat Imobiliare
Radu Sucila
Manager

0725308803


Solicită chiar acum o vizionare
Telefon
Sună acum Solicită vizionare
Necesare:

Site-ul nu poate funcționa corect fără aceste cookie-uri. Vezi cookie-urile

Statistică:

Strângem statistici anonime despre voi, vizitatorii unici, pentru a vă îmbunătăți experiența dumneavoastră. Vezi cookie-urile

Marketing:

Pentru a ne promova mai eficient serviciile noastre, folosim cookies pentru a vă identifica și a vă oferi proprietăți și servicii personalizate. Vezi cookie-urile

Acest site folosește cookies, află detalii. Alege ce tipuri de cookies dorești să permitem: