ID CP2611002

Duplex de vânzare | Teren de 700 mp | Cartierul Dâmbul Rotund

ID CP2611002

370,000 €

Casă / Vilă cu 5 camere de vânzare
Dambul Rotund, Cluj-Napoca
150 mp
2024

Vă propunem spre vânzare o casă de tip duplex, situat în Cartierul Dâmbul Rotund.

Proprietatea beneficiază de o suprafață utilă de 150 mp, iar pe lângă aceasta, dispune de trei parcări exterioare, și de un teren de 700 mp.

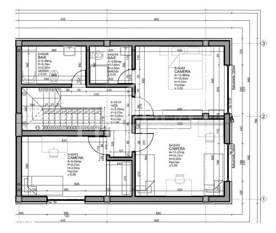
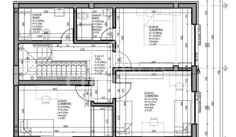
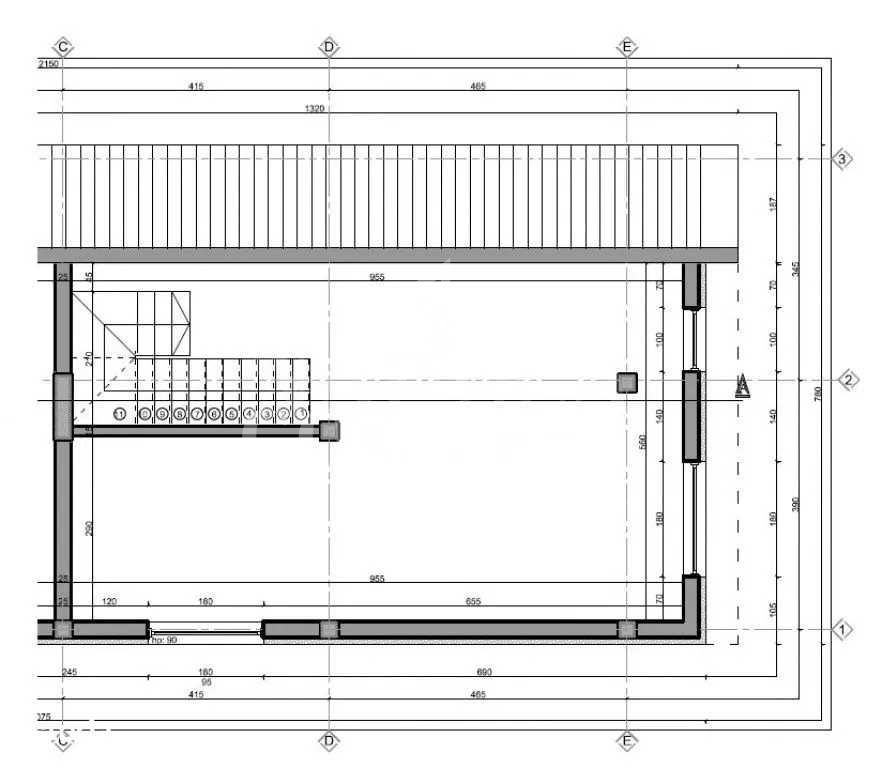
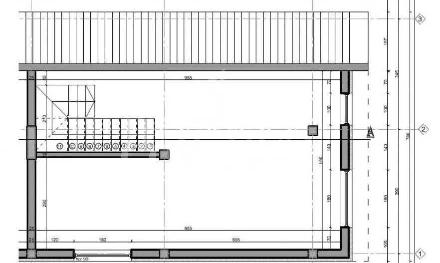
Casa este dispusă pe un regim de înălțime de P+E+M, și este compartimentată astfel :

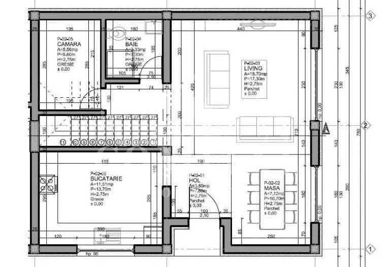
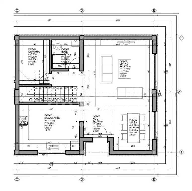
Parter: Un living cu ieșire spre terasă, o bucătărie închisă, o baie, un spațiu tehnic.

Etaj: un hol, trei dormitoare dintre care unul este dotat cu baie proprie.

Mansardă: o încăpere open space cu un balcon de 9 mp.

Locuința se predă în stadiu semifinisat. În momentul de față nu are montată centrala si instalațiile pentru încălzire.

Construcția casei a fost făcută în anul 2022.

Pentru mai multe informații și vizionări, contactați-ne cu încredere!

Informațiile din anunț au fost furnizate în prealabil de către proprietar. Agenția nu își asumă responsabilitatea pentru eventuale modificări în ceea ce privește prețul sau informațiile prezentate.

Citește mai mult

  • Număr camere
    5
  • Dormitoare
    4
  • Număr bucătării
    1
  • Număr băi
    3
  • Număr balcoane
    1
  • Număr terase
    1
  • Număr locuri parcare
    3
  • Disponibilitate
    Imediat
  • Tip casă
    Duplex
  • Stare interior
    Semifinisat
  • Anul finisării
    2024
  • Suprafață utilă
    150 mp
  • Suprafață construită
    180 mp
  • Suprafață construită la sol (Amprentă)
    90.0 mp
  • Suprafață teren
    700 mp
  • Suprafață curte
    700 mp
  • Suprafață curte liberă
    610 mp
  • Suprafață terasă
    30 mp
  • Deschidere
    15 m
  • Acoperiș
    Țiglă
  • Stadiu construcție
    Finalizată
  • An construcție
    2024
  • Construcție nouă
    Da
  • Tip construcție
    Cărămidă
  • Număr etaje clădire
    1
  • Are mansardă
    Da

Facilități

Apă
Apometre
Bucătărie închisă
Canalizare
Contor căldură
Contor electric
Contor gaz
Curent
Curte
Ferestre care se deschid
Ferestre PVC
Gaz
Geamuri termopan
Glet
Grădină proprie
Iluminat stradal
Internet
Mijloace de transport în comun
Nemobilat
Parcare deschisă
Șapă
Străzi asfaltate
Telefon
Ușă intrare metal
Vedere panoramică
Office Comitat - Comitat Imobiliare
Office Comitat
Asistent Manager

0725308803


Solicită chiar acum o vizionare
Telefon
Sună acum Solicită vizionare
Necesare:

Site-ul nu poate funcționa corect fără aceste cookie-uri. Vezi cookie-urile

Statistică:

Strângem statistici anonime despre voi, vizitatorii unici, pentru a vă îmbunătăți experiența dumneavoastră. Vezi cookie-urile

Marketing:

Pentru a ne promova mai eficient serviciile noastre, folosim cookies pentru a vă identifica și a vă oferi proprietăți și servicii personalizate. Vezi cookie-urile

Acest site folosește cookies, află detalii. Alege ce tipuri de cookies dorești să permitem: